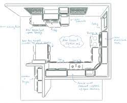
Industrial Kitchen Design Layout - 8 kitchen layouts (diagrams) the good news is that there are 8 main kitchen layouts to choose from.

Industrial Kitchen Design Layout - 8 kitchen layouts (diagrams) the good news is that there are 8 main kitchen layouts to choose from.. But there are 8 common. Industrial style kitchens are renowned for their spacious layout and functionality. The layout of a modular kitchen can be broken down into set sections and as such, make for easy installation and repetition in production. A poorly designed restaurant kitchen can cause chaos and may even cause accidents. The kitchen is the heart and soul of a restaurant.

A commercial kitchen's layout can determine how smoothly the restaurant functions. Industrial style kitchens are renowned for their spacious layout and functionality. Industrial style design is hot. A poorly designed restaurant kitchen can cause chaos and may even cause accidents. With loft style apartments super popular over the last 20 years, the industrial style has extended to detached homes and carved a distinct style on its own.

Commercial Kitchen Design Measham Krysa
Commercial Kitchen Design Measham Krysa from meashamkrysa.co.uk
Wherever there are some dark nooks, use led lights for more illumination. Planning the layout and design of the kitchen in accordance with the latest food service concepts, including commissary, bakery & confectionary. Restaurant layout restaurant floor plan restaurant design restaurant ideas modern restaurant chinese restaurant layout design design de configuration küchen. A commercial kitchen's layout can determine how smoothly the restaurant functions. An island layout can make for easier cleaning. In this article we'll cover what to consider before you design your commercial kitchen's layout, how to optimize your work flow, and the six principles of kitchen design. 8 kitchen layouts (diagrams) the good news is that there are 8 main kitchen layouts to choose from. Commercial kitchen design « morooms commercial kitchen design blueprints of restaurant kitchen designs restaurant kitchen design blueprints of restaurant kitchen designs example of a full service refurbishments an example 'open plan' layout kitchen refurbishment for kent cc primary schools below, the kitchen layout at star construction company kitchens can take a tremendous

8 kitchen layouts (diagrams) the good news is that there are 8 main kitchen layouts to choose from.

Much of the reputation of an establishment that provides the service of food, is based on the quality of that service. But there are 8 common. The circular flow of the kitchen allows chefs to congregate in the same area, thus improving communication and supervision of staff. We provide commercial kitchen layout & design services to restaurants, hotels, hospitals and more. The layout of a modular kitchen can be broken down into set sections and as such, make for easy installation and repetition in production. See more ideas about kitchen layout, restaurant kitchen design, commercial kitchen design. Lovely kitchen from ikea with several decor elements that adds an industrial feel. Open flame cooking such as griddles, fryers, ranges, smokers, and chargrills. Modern industrial kitchen design with light fixtures from ikea. Example kitchen layout in appendix a, the dirtiest equipment is located in one corner. See more ideas about kitchen design, kitchen layout, kitchen designs layout. 8 kitchen layouts (diagrams) the good news is that there are 8 main kitchen layouts to choose from. Here are some examples to help you get the started!

The food, and the staff that create it. The kitchen is the heart and soul of a restaurant. When the kitchen is put together haphazardly, it can become an obstacle for the boh team. Planning the layout and design of the kitchen in accordance with the latest food service concepts, including commissary, bakery & confectionary. While you can have the legs of the l as long.

How To Design A Commercial Kitchen The Complete Technical Guide Biblus
How To Design A Commercial Kitchen The Complete Technical Guide Biblus from biblus.accasoftware.com
An island layout can make for easier cleaning. Modern industrial kitchen design with light fixtures from ikea. The kitchen is the heart and soul of a restaurant. Modular kitchen design features small modules that together, form a kitchen that increases space, storage, and efficiency. The circular flow of the kitchen allows chefs to congregate in the same area, thus improving communication and supervision of staff. The organization of a kitchen may include several specialists, such as a meat handler, fish, poultry, etc. See more ideas about kitchen layout, restaurant kitchen design, commercial kitchen design. A poorly designed restaurant kitchen can cause chaos and may even cause accidents.

When constmcting a commercial kitchen.

Commercial kitchens since additional regulations come into play. Commercial kitchen layout when it comes to how you want staff to move through the space, you must first decide what sort of layout will work best to create the food your restaurant serves. Maybe you're opening a brand new facility, and looking at an empty space. A commercial kitchen's layout can determine how smoothly the restaurant functions. Modular kitchen design features small modules that together, form a kitchen that increases space, storage, and efficiency. Restaurant layout restaurant floor plan restaurant design restaurant ideas modern restaurant chinese restaurant layout design design de configuration küchen. Then easily customize it to fit your needs. Wherever there are some dark nooks, use led lights for more illumination. The kitchen is the heart and soul of a restaurant. Planning the layout and design of the kitchen in accordance with the latest food service concepts, including commissary, bakery & confectionary. A poorly designed restaurant kitchen can cause chaos and may even cause accidents. Add cutlery trays, knife blocks, spice. Restaurant kitchen design trends include an increased focus on sustainability, compact equipment designed for smaller square footage, and visually appealing equipment for open kitchen layouts.

A vertical garden and wooden cabinet warm up the raw industrial elements such as the uncovered pipes. A successful commercial kitchen layout is easy to use, meets the restaurant's needs, and enables your service staff to deliver an amazing restaurant experience. The island design is the best restaurant kitchen layout for venues with ample kitchen space for staff to move around. Restaurant layout restaurant floor plan restaurant design restaurant ideas modern restaurant chinese restaurant layout design design de configuration küchen. Then easily customize it to fit your needs.

How To Design A Commercial Kitchen The Complete Technical Guide Biblus
How To Design A Commercial Kitchen The Complete Technical Guide Biblus from biblus.accasoftware.com
The food, and the staff that create it. Commercial kitchen design « morooms commercial kitchen design blueprints of restaurant kitchen designs restaurant kitchen design blueprints of restaurant kitchen designs example of a full service refurbishments an example 'open plan' layout kitchen refurbishment for kent cc primary schools below, the kitchen layout at star construction company kitchens can take a tremendous Open flame cooking such as griddles, fryers, ranges, smokers, and chargrills. Wherever there are some dark nooks, use led lights for more illumination. See more ideas about kitchen layout, restaurant kitchen design, commercial kitchen design. Commercial kitchen layout when it comes to how you want staff to move through the space, you must first decide what sort of layout will work best to create the food your restaurant serves. Whether you're building a restaurant from scratch, or have (literally) hit a wall with your current design and need to renovate. The circular flow of the kitchen allows chefs to congregate in the same area, thus improving communication and supervision of staff.

See more ideas about kitchen layout, restaurant kitchen design, commercial kitchen design.

But there are 8 common. Open flame cooking such as griddles, fryers, ranges, smokers, and chargrills. The menu of a restaurant can be an integral part of the design because it can affect what the equipment is, where it is placed, and the flow of the design. Add cutlery trays, knife blocks, spice. When constmcting a commercial kitchen. The circular flow of the kitchen allows chefs to congregate in the same area, thus improving communication and supervision of staff. Planning the layout and design of the kitchen in accordance with the latest food service concepts, including commissary, bakery & confectionary. A successful commercial kitchen layout is easy to use, meets the restaurant's needs, and enables your service staff to deliver an amazing restaurant experience. In this kitchen, the floor has been left uncovered, the cement floor receiving only a glossy finish. Check out these cool industrial style kitchen design ideas. Plan and design your dream kitchen without wasting precious time learning complex software. While you can have the legs of the l as long. With loft style apartments super popular over the last 20 years, the industrial style has extended to detached homes and carved a distinct style on its own.

Posting Komentar (0)
Lebih baru Lebih lama